Tangki amonia adalah fasilitas dalam industri kimia untuk penyimpanan amonia. Zat kimia amonia memiliki karakter yang khas, yaitu baunya yang menyengat. Amonia dimanfaatkan untuk pupuk, zat pendingin, hingga pengolahan limbah. Untuk menjamin keamanan dan efisiensi penyimpanannya, ISO tank container yang bermaterial baja dengan standar internasional menjadi jawaban atas kebutuhan industri saat ini.
Material dan ketatnya standar kualitas unit ISO tank container menjadikannya sebagai opsi terbaik oleh manufaktur besar, perusahaan logistik bahan kimia, hingga sektor agrikultur yang membutuhkan sistem penyimpanan dalam jumlah besar. Penggunaan ISO tank container juga dapat meningkatkan efisiensi distribusi bahan cair atau gas.
Di Indonesia sendiri, penggunaan tangki amonia berbasis ISO tank ditemukan di kawasan industri, seperti kawasan industri Jawa Barat, Banten, hingga Kalimantan Timur.
ISO tank container tidak hanya dikenal karena daya tampungnya yang besar (24.000 hingga 26.000 liter) tetapi juga karena efisiensi biaya dan keamanan jangka panjang yang ditawarkannya.
Dibandingkan metode konvensional, ISO tank memungkinkan pengangkutan dalam volume besar yang mana bisa menekan biaya logistik. Struktur bajanya yang kokoh dilengkapi sistem katup pengaman juga menjadikannya pilihan ideal untuk berbagai jenis cairan, mulai dari bahan pangan hingga zat kimia berbahaya semisal amonia.
Tangki jenis ini juga semakin populer karena fleksibilitas penggunaannya. Selain untuk amonia, ISO tank mampu digunakan untuk berbagai cairan industri, termasuk minyak nabati, minuman, bahan baku kimia, bahkan gas bertekanan. Kombinasi efisiensi, keamanan, dan kemampuan multifungsi inilah yang membuat ISO tank terus menjadi solusi utama di berbagai industri.
Bagi Anda yang membutuhkan tangki amonia berbasis ISO tank, Tradecorp hadir sebagai salah satu penyedia terpercaya di Indonesia. Perusahaan ini tidak hanya menawarkan kontainer ISO tank, tetapi juga berbagai jenis kontainer modifikasi, bangunan modular, hingga struktur baja ringan (LGS) untuk kebutuhan industri.
Selengkapnya, mari kita bahas ukuran, kapasitas, hingga spesifikasi teknis tangki amonia berbasis ISO tank dalam artikel ini.
Daftar isi
Model ISO Tank Container sebagai Tangki Amonia

Kontainer ISO Tank Terbaik untuk Tangki Amonia
Jenis ISO Tank Container yang Cocok sebagai Tangki Amonia
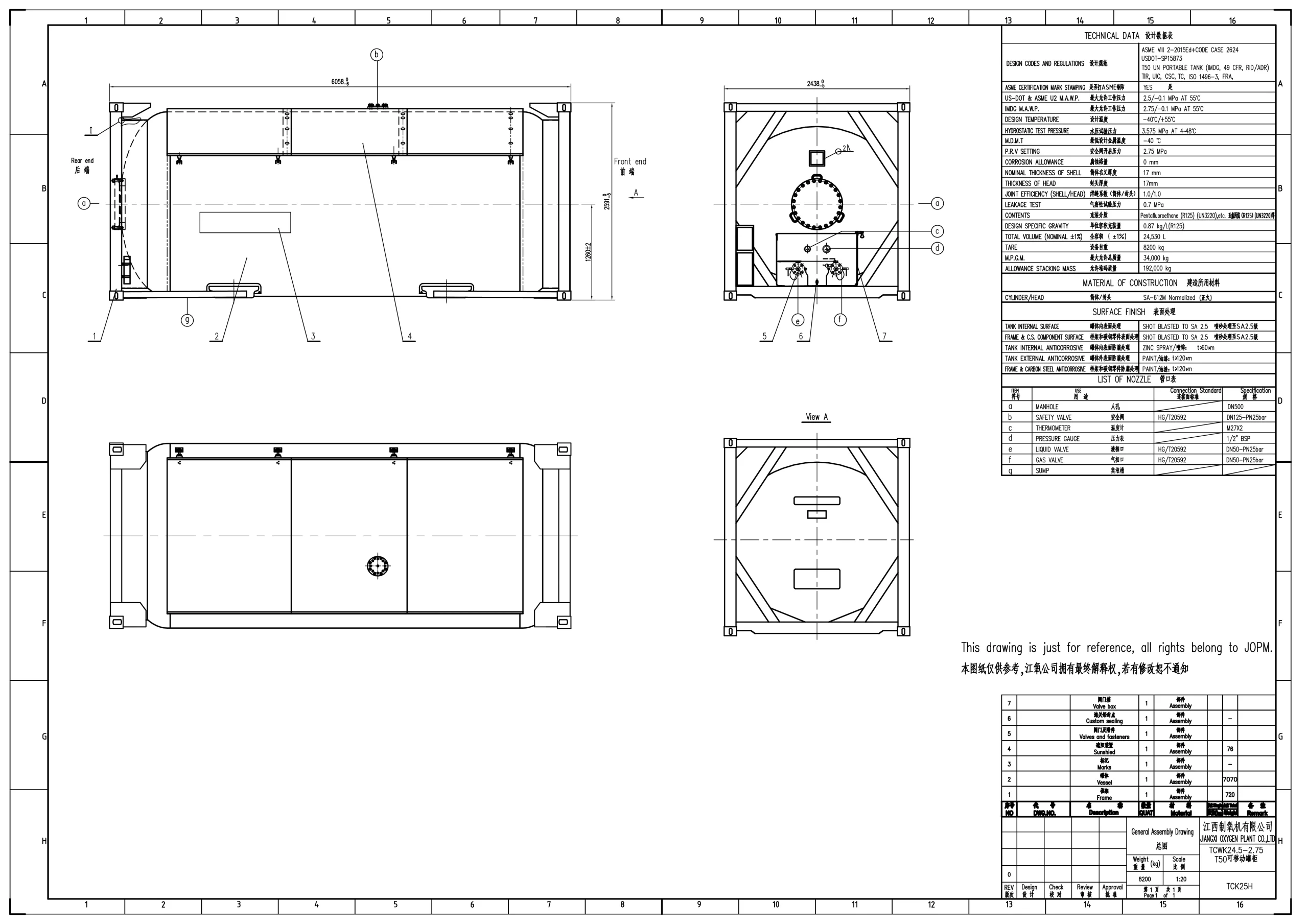
ISO Tank T50 dirancang secara khusus untuk menangani gas bertekanan, seperti amonia dan LPG, dengan memenuhi standar keselamatan yang ketat. ISO Tank T50 memiliki kapasitas antara 24.500 hingga 27.000 liter dan terbuat dari material baja berkualitas tinggi yang sangat tahan terhadap sifat korosif amonia.
Tangki ini mampu menahan tekanan dengan desain yang dapat mendukung kondisi tersebut. Selain itu, ISO Tank T50 dilengkapi dengan berbagai fitur keselamatan, seperti katup pengaman dan manhole, yang sudah sesuai dengan standar internasional, seperti ISO dan ASME, untuk memastikan transportasi yang aman untuk bahan berbahaya.
Selain itu, ISO Tank T50 dirancang untuk mendukung pengangkutan amonia dalam berbagai kondisi dengan rentang suhu operasi yang luas antara -55°C hingga +80°C. Sistem insulasi pelindung matahari dan katup pengaman yang efektif dapat memastikan pengangkutan yang aman baik dalam cuaca ekstrem ataupun tekanan tinggi.
ISO Tank T50 sangat ideal untuk pengangkutan antarmoda (truk, kereta api, atau kapal) sehingga memudahkan pendistribusian amonia. Selain itu, tangki ini dilengkapi dengan sejumlah fitur penting, seperti tutup manlid, saluran gas, saluran cairan, pengukur tekanan, termometer, dan pengukur level, yang memudahkan pemantauan dan pengelolaan tangki selama transportasi.
Tangki yang bersertifikat ISO ini juga dapat dilengkapi dengan fitur-fitur tambahan sesuai kebutuhan, seperti kabinet operasi, pelindung matahari, sambungan arde, tempat penyimpanan dokumen, pelat data, dan stiker resmi, yang membantu memastikan kepatuhan terhadap regulasi dan memudahkan pengelolaan selama pengiriman.
Dengan fitur-fitur tersebut, ISO Tank T50 menjadi pilihan yang sangat cocok untuk kebutuhan pengangkutan amonia, baik dalam bentuk cair maupun gas bertekanan.
Kapasitas ISO Tank dan Dimensi Ukurannya
|
Spesifikasi ISO Tank T50 |
Ukuran |
| Panjang x Lebar x Tinggi | 6,058 x 2,438 x 2,591 meter |
| Maximum Permissible Gross Mass | 34.000 Kg |
| Tare Mass | 8.200 Kg |
| Nominal Capacity | 24.530 liter |
| Design Temperature | (-40°C) hingga +55°C |
| Minimum Design Metal Temperature | -40°C |
| Leakage Test | 0,7 MPa |
| Hydrostatic Test Pressure | 3,575 MPa AT 4-48°C |
| Allowance Stacking Mass | 192.000 kg |
Kontainer ISO Tank Terbaik untuk Tangki Amonia
Dapatkan Harga ISO Tank Terbaik di Tradecorp
Di Tradecorp, Anda bisa menemukan berbagai pilihan ISO Tank yang dirancang untuk memenuhi kebutuhan transportasi bahan kimia, gas bertekanan, atau cairan lainnya. Kami berkomitmen untuk menyediakan produk dengan kualitas unggul yang dapat diandalkan dalam berbagai kondisi.
Sebagai penyedia ISO Tank terbaik di Indonesia, Tradecorp menawarkan produk yang tidak hanya sesuai dengan standar internasional, tetapi juga memiliki ketahanan dan keamanan tinggi. Kami memastikan setiap unit yang kami produksi melalui proses kontrol kualitas yang ketat, dimulai dari tahap produksi hingga pengiriman.
Dengan fasilitas yang terkontrol dan tim yang berpengalaman, kami dapat memastikan bahwa setiap ISO Tank telah memenuhi spesifikasi yang diinginkan pelanggan, baik itu untuk pengangkutan amonia, LPG, maupun cairan lainnya.
Bagi Anda yang tertarik mengetahui lebih lanjut tentang ISO Tank, informasi lengkapnya dapat ditemukan di situs resmi Tradecorp di kontainerindonesia.co.id. Anda bisa menemukan berbagai pilihan ISO tank, melihat spesifikasi unit, serta mendapatkan perkiraan harga yang sesuai dengan kebutuhan Anda.
Jika Anda sudah memiliki gambaran tentang produk yang diinginkan, langkah selanjutnya sangat mudah. Cukup isi formulir online yang tersedia, dan tim Tradecorp akan menghubungi Anda untuk mendiskusikan lebih lanjut tentang spesifikasi teknis, desain, serta estimasi biaya yang sesuai dengan anggaran dan kebutuhan pengiriman Anda.
Selain itu, kami juga menyediakan layanan konsultasi gratis untuk membantu Anda memilih solusi terbaik. Apakah itu pilihan material yang sesuai, fitur tambahan seperti katup pengaman, atau integrasi dengan sistem pengangkutan lainnya, kami siap memberikan saran yang akan memastikan pengangkutan berjalan dengan lancar dan aman.











